Ann Kristiin Entson
- Arhitektuuriteaduskond
- Arhitektuur ja linnaplaneerimine
- ma
- Avaliku ruumi loome: osalusprojekt Valga keskväljaku näitel
- Juhendaja(d): Katrin Koov ja Kadri Klementi

Magistritöö “Avaliku ruumi loome: Osalusprojekt Valga keskväljaku näitel” uurib avaliku ruumi loomise praktikat ja pakub välja ettepanekud, kuidas luua avalikku ruumi koos selle kasutajatega. Töös on loodud osalusprojekti läbiviimise juhend, mille alusel avaliku ruumi loojad projekte läbi viia võiksid. Võttes aluseks enda koostatud juhendi on magistritöös viidud läbi Valga keskväljaku tulevikuvisiooni projekt.
Kuigi Valga keskväljak sai alles hiljuti valmis, ei ole ala kohalike poolt aktiivsesse kasutusse võetud. Ann Kristiin uuris oma töös keskväljaku vähese kasutuse tagamaid ning viis koos kohalike inimestega läbi osalusprojekti, et koostada ettepanekud keskväljaku edasiseks arendamiseks. Muuhulgas lõi ta selle jaoks valgaruum.ee veebilehe, kus koos kohalikega ühiselt ettepanekud välja töötati.
Valga keskväljak on üks arhitektuuriprogrammi “Hea avalik ruum” raames loodud linnaväljakutest. Väljaku rajamisel oli soov luua atraktiivne avalik ruum, mis aitaks kaasa asutuste sinna ümber koondumisele.
Paraku ei ole ükski keskväljaku ääres asuvatest tühjadest hoonetest endale uut funktsiooni leidnud, samuti ei ole väljaku välialad kohalike seas aktiivses kasutuses.
Valga keskväljaku aktiivsemaks muutmiseks on vajalik välja töötada lahendused, mis kohalike elanike ootustele vastaksid. Seni ei ole nad keskväljaku loomise juures osalised olnud.
Kohalikud elanikud peavad olema avaliku ruumi loomisel ja parandamisel osalised, et nende soovid ka päriselt keskväljakul kajastuksid. Läbi erinevate tegevuste on selles projektis koos kohalikega loodud visioon Valga keskväljaku edasiseks arenguks.
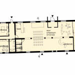
Koostöös kohalike elanikega on loodud nägemus keskväljaku hoonete uutest funktsioonidest. Väljakul paiknevatesse tühjadesse hoonetesse on uued tegevused paigutatud nii, et tekiks ühtne ruumiline tervik. Erinevate majade tegevused on omavahel seotud ja võistlemise asemel toetavad üksteist.
Väljakule on välja pakutud suuremad asutused nagu Liivimaa keskus koostöökeskuse, teabepunkti, näituseruumi, fab-labi ja seminariruumidega, samuti sise- ja väliturg. Lisaks paikneb väljakul käsitööpood koos töökodadega.
Keskväljakule on paigutatud ka Valga noortekeskus, mis kannab olulist rolli noorte inimeste väljakule toomisel. Samuti asub noortemajas laenutuspunkt, kust saab erinevaid vahendeid väljakul kasutamiseks: ratastest pinksireketite ja pallideni.
Toitlustusega tegelevad väljakul suure terrassiga pubi ning kohvik-pagarikoda. Kohvik on ühendatud linna ainsa raamatupoega. Keset väljakut paiknev üritustemaja saab kohalike pidustuste ja muude erinevate sündmuste toimumispaigaks.
Tuues väljakule mitmeid erinevaid funktsioone on ala aktiivne suurema osa ööpäevast kõikidel nädalapäevadel. See aitab muuta aktiivsemaks ja atraktiivsemaks nii keskväljakut kui kogu kesklinna piirkonda ja soodustab linnakeskuse edasist arengut.



































