Andrea Miku
- Faculty of Architecture
- Interior Architecture
- ba
- From Victim to Survivor: Rethinking Community Shelters for Female Victims of Domestic Violence
- Tutor(s): Malle Jürgenson, Liina-Liis Pihu, Anni Kotov, Alina Nurmist, Kirke Päss, Jekaterina Shipilenko
As a student of interior architecture, I am interested in domestic violence against women and healing from psychological trauma in a therapeutic and supportive environment. I hope to shed light to often privately experienced and hidden trauma, which has left victims of domestic violence with invisible wounds and stays in the subconscious even after an abusive relationship has ended.

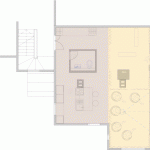
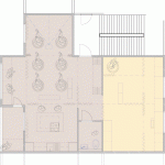
In my thesis I have proposed a community based approach to designing new domestic violence awareness centers. Through empowering self-identity, enabling the adjustment of space and giving the opportunity to educate themselves, the victims of psychological abuse can redefine their negative experience with the help of new knowledge and other like-minded people. Awareness centers are adaptable to existing 60-75 square metre apartments in Tallinn or elsewhere in Estonia.


